在建项目



湖南大学附属中小学新校区项目概况

发布时间: 2020-03-25       点击: 次  


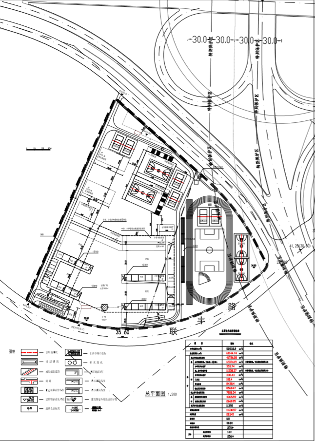
项目名称:湖南大学附属中小学新校区

项目地址:洋湖片区罗家嘴立交桥与联丰路立交桥交汇处两侧

建筑面积:52000平方米

 

上一条:绿色建筑工程与环境研究中心项目概况

下一条:绿色建筑工程与环境研究中心项目概况