在建项目



绿色建筑工程与环境研究中心项目概况

发布时间: 2020-03-25       点击: 次  


项目名称:绿色建筑工程与环境研究中心

项目地址:湖南大学南校区

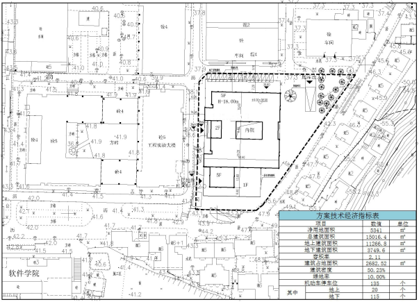
建筑面积:16084平方米

 



下一条:湖南大学附属中小学新校区项目概况